東城田園 幸福家園
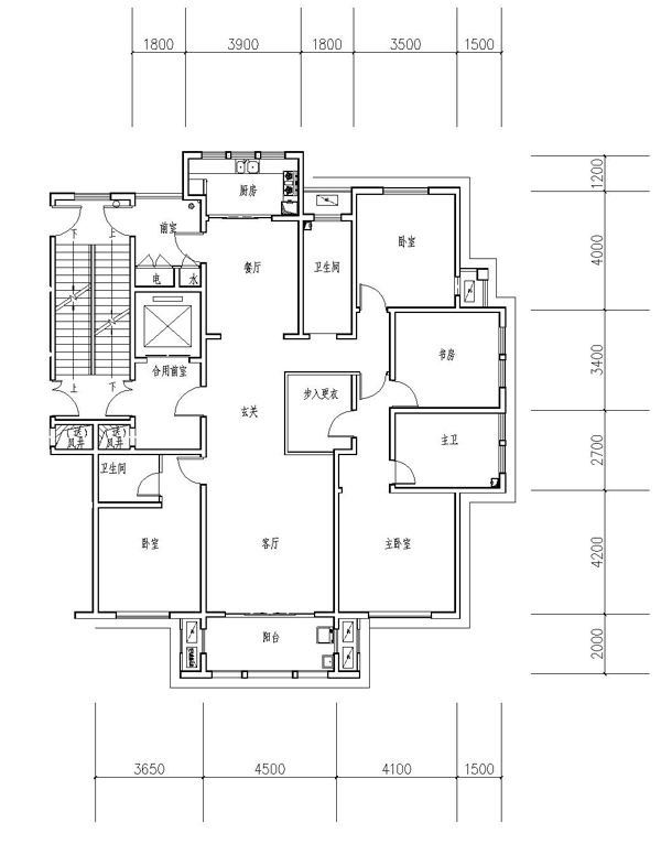
A2戶型196平米新中式風格
A2戶型196平米新中式風格
新中式風格誕生于中國傳統文化復興的新時期,伴隨著國力增強,民族意識逐漸復蘇,人們開始從紛亂的“摹仿”和“拷貝”中整理出頭緒。在探尋中國設計界的本土意識之初,逐漸成熟的新一代設計隊伍和消費市場孕育出含蓄秀美的新中式風格。在中國文化風靡全球的現今時代,中式元素與現代材質的巧妙兼柔,明清家具、窗欞、布藝床品相互輝映,再現了移步變景的精妙小品。
平面布置
PLANE ANALGSIS

空間方案
SPACE CONCEPT
入門玄關

客廳

客廳

走廊

餐廳

主臥

次臥

書房

公共衛生間

主臥衛生間

廚房


魯公網安備 37098202000369號